Villa jumelée à Collombey
Collombey-Muraz
Description
Référence:
Villa jumelée/Collombey 4.5 pièces A
Pièces:
4.5
Nb de salles de bain:
2
Nb de chambres:
3
Surfaces:
131 m2
Surface du terrain:
407 m2
Vue:
Montagne
Style:
Moderne
État:
En construction
Description
Située dans un environnement paisible et recherché de Collombey, cette superbe villa jumelée moderne de 4,5 pièces offre 131 m² habitables alliant confort, fonctionnalité et élégance.
Distribution :
Rez-de-chaussée :
-
Hall d’entrée avec armoire murale
- Buanderie
- WC
- Cage d'escalier avec économat
- Cuisine ouverte, moderne et conviviale
- Salle à manger
-
Séjour
-
Terrasse avec jardin
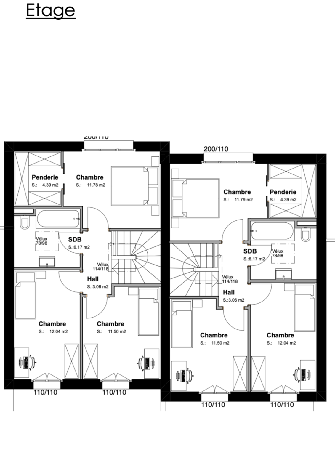
Étage :
- Couloir avec cage d'escalier
-
Une salle de bain
-
Une suite parentale avec dressing
-
Deux chambres
Annexes et extérieurs :
-
Garage
- Local technique
-
Places de parc extérieures
Ses points forts:
- Architecture contemporaine et finitions de qualité au choix des acquéreurs
-
Environnement paisible, proche de toutes commodités
-
Espaces intérieurs harmonieux et baignés de lumière
Cette villa séduit par sa modernité, sa luminosité et sa distribution fonctionnelle, parfaite pour une famille souhaitant profiter d’un cadre de vie paisible tout en restant proche des commodités.
SITUATION
Au cœur du Chablais valaisan, la commune de Collombey-Muraz séduit par son cadre naturel exceptionnel et son art de vivre harmonieux.
Entourée de majestueuses montagnes, à deux pas du lac Léman et à proximité immédiate des stations de ski, elle offre un environnement privilégié où nature et confort moderne se rencontrent.
Entourée de majestueuses montagnes, à deux pas du lac Léman et à proximité immédiate des stations de ski, elle offre un environnement privilégié où nature et confort moderne se rencontrent.
Commune dynamique et accueillante, Collombey-Muraz se distingue par ses infrastructures modernes, sa vie locale animée et son esprit familial.
Entre traditions rurales et développement urbain maîtrisé, elle incarne parfaitement l’équilibre entre authenticité, qualité de vie et accessibilité.
Entre traditions rurales et développement urbain maîtrisé, elle incarne parfaitement l’équilibre entre authenticité, qualité de vie et accessibilité.
Adresse
1868 Collombey-Muraz
Sur la carte
CHF 1'050'000.-
Biens similaires
